La Residència Juan Vidal de la Cooperativa Obrera de Viviendas (COV), també coneguda com a ‘Residencias Cooperativas’ és un edifici d’apartaments construït als anys 60. La Residència compta amb 162 apartaments d’un i dos dormitoris i està construïda amb una estructura de formigó i acer i tancaments de fàbrica de maó.
L’Avinguda Verge de Montserrat als anys 60 (Arxiu COV).
L’edifici va ser concebut com a allotjament temporal per a les famílies que esperaven un pis de la Cooperativa. Amb el temps s’ha convertit en l’habitatge habitual de moltes persones que al seu dia no van poder comprar un pis de la Cooperativa o que actualment no troben habitatge de lloguer a un preu assequible.
El disseny original dels apartaments està format per un passadís distribuïdor amb una habitació contigua que comunica amb una cuina-menjador i un bany. Els mobles es construïen a mida al taller de mobles de la COV i s’hi instal·laven per aprofitar l’espai al màxim i millorar l’habitabilitat dels apartaments.
Mobiliari fet a mida al taller de la COV (Arxiu COV).
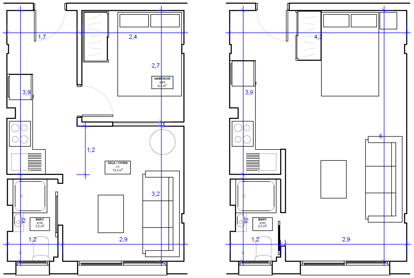
Els apartaments es reformen contínuament per millorar les condicions d’habitabilitat dels espais i introduir-hi millores. Recentment, a proposta de la cooperativa d’arquitectura ètica La Rachola i en col·laboració amb l’equip de reformes de l’Associació Saó Prat, s’ha actualitzat la distribució perquè els apartaments siguin més versàtils i adaptables a les necessitats dels usuaris. Es passa d’un espai dividit en dos a un ampli espai on el mobiliari és clau per dividir-ne els usos.
Distribució original (esquerra) i nova proposta (dreta).
D’aquesta manera, les persones usuàries tenen més llibertat per moblar els espais i no hi ha tantes restriccions a l’hora d’ubicar els mobles que aquestes persones ja portaven dels seus habitatges anteriors. La distribució es pot canviar fàcilment segons l’orientació de l’apartament, l’època de l’any o les preferències de les persones usuàries.
Els materials són més resistents i la carta de colors és neutra i de tons clars perquè l’espai sembli més ampli. També s’han fet millores en l’aïllament de mitgeres, sostres i finestres per augmentar el confort tèrmic i acústic.
Propostes de distribució reversibles.
D’aquesta manera, la residència continua desenvolupant la seva tasca social 60 anys després de la seva construcció; habitatge assequible, estable i cooperatiu per a famílies i persones grans que no troben solucions residencials al mercat actual. Des de la Cooperativa Obrera de Viviendas seguirem treballant amb les persones residents amb noves propostes enfocades a la millora de la convivència, l’habitabilitat i la seguretat.
Actors principals
La Rachola és una cooperativa d’arquitectura del Prat de Llobregat que ofereix solucions a la crisi energètica i ecològica actual a través de projectes d’arquitectura saludables i respectuosos amb el medi ambient. Els projectes s’estudien per reduir el consum energètic i aconseguir un hàbitat saludable introduint aspectes de bio habitabilitat.
La Rachola és des del 2018 Certified Passive House Designer, que els certifica en el disseny i càlcul de projectes sota l’estàndard Passivhaus tant d’obra nova com de rehabilitació.
www.larachola.coop
info@larachola.coop
instagram.com/larachola.arquitectura
L’Empresa d’Inserció de SaóPrat és un projecte d’Economia Social creat per l’Associació SaóPrat amb la finalitat de facilitar la integració social de persones en risc d’exclusió a través d’un contracte laboral vinculat a un procés de formació i experiència professional.
SaóReformes està especialitzada en reformes integrals i manteniment d’edificis i rehabilitació d’habitatges i locals. Sota aquesta iniciativa es generen llocs de treball fix i contractes d’inserció per a joves en situació de vulnerabilitat.
www.saoreformes.org
www.saoprat.org/empresa-insercio
saoprat@saoprat.net
instagram.com/saoprat/
linkedin.com/company/associacio-saoprat/





